导航

Acta Aeronautica et Astronautica Sinica ›› 2025, Vol. 46 ›› Issue (15): 131530.doi: 10.7527/S1000-6893.2025.31530

• Fluid Mechanics and Flight Mechanics • Previous Articles    

Effects of swirl flow and rotational Reynolds number on sealing performance of turbine rim

Haocheng SHU1,2, Xiaozhi KONG1,2(), Wenbin GONG1,2, Gaowen LIU1,2, Aqiang LIN1,2   

  1. 1.School of Power and Energy,Northwestern Polytechnical University,Xi’an 710129,China
    2.Shanxi Key Laboratory of Thermal Science in Aero-engine System,Northwestern Polytechnical University,Xi’an 710072,China
    3.Advanced Power Research Institute of Northwestern Polytechnical University in Sichuan Tianfu New Area,Northwestern Polytechnical University,Chengdu 610299,China
    4.Shandong Zuoyao Intelligent Equipment Co. ,Ltd. ,Weihai 264300,China
  • Received:2024-11-13 Revised:2024-12-27 Accepted:2025-02-13 Online:2025-03-07 Published:2025-02-28
  • Contact: Xiaozhi KONG E-mail:kongxiaozhi_lx@163.com
  • Supported by:
    Aeronautical Science Foundation of China(2024M070053001);Sichuan Provincial Natural Science Foundation(2025ZNSFSC1243);Fundamental Research Funds for the Central Universities(D5000240317);Taishan Industrial Experts Program

Abstract:

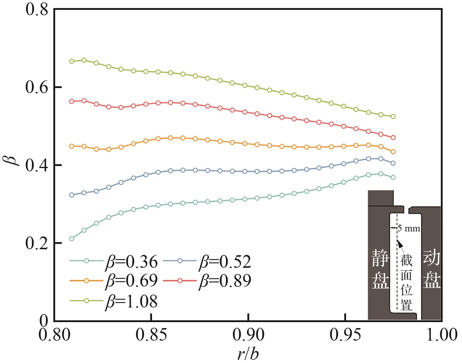
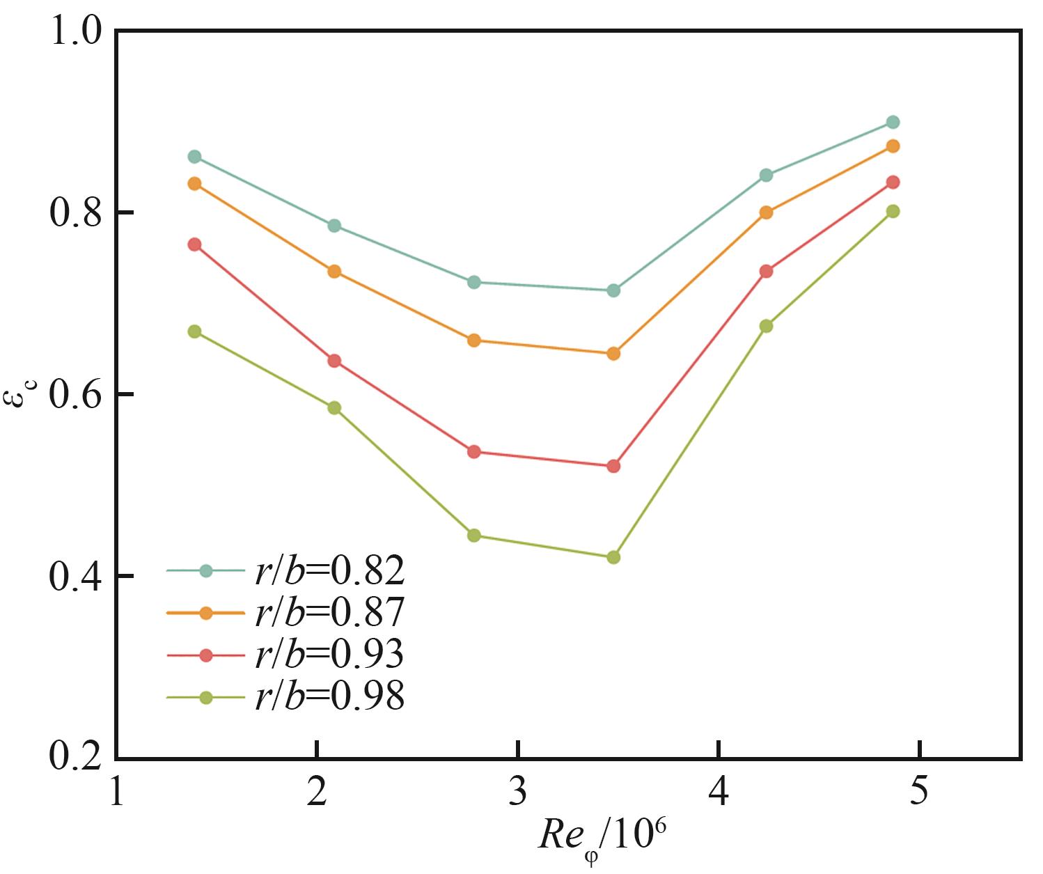
To investigate the influence of high rotational speed swirl flow and rotational Reynolds number on sealing performance at high rotational speed, this paper presents a three-dimensional steady simulation of a rim seal model. The validity of the employed numerical method in computing cavity flow and sealing performance is verified through comparisons between experimental data and numerical calculations. On this foundation, the flow field distribution within the turbine cavity under varying conditions of swirl ratio and rotational Reynolds number is investigated. Furthermore, the variation in sealing efficiency is analyzed using the additional passive tracer method. The results reveal that changes in both the swirl ratio and the rotational Reynolds number exert significant impacts on the cavity flow field, thereby altering the sealing performance. Under conditions of constant cooling flow rate, increasing the cooling flow swirl ratio raises the total pressure in the cavity, resulting in an enhancement of the sealing efficiency at the high-radius locations of both the rotating and static walls. Specifically, as the swirl ratio increases from 0.36 to 1.08, the sealing efficiency of the static wall in the high-radius region increases by 6.3%. Under conditions of constant sealing clearance, increasing the rotational Reynolds number causes the vortex within the cavity to migrate towards the high-radius direction and the side of the rotating wall. When passing through the sealing clearance, the vortex entrains the gas, exacerbating the phenomenon of gas ingestion. As the rotational Reynolds number increases from 1.39×106 to 4.87×106, the sealing efficiency first decreases and then increases with the sealing efficiency of the static wall in the high-radius region reaching only 0.42.

Key words: turbine, rim seal, gas ingestion, swirl ratio, sealing efficiency, rotational Reynolds number

CLC Number: